Photo - Cuisine

Condo à vendre, Montréal (Ahuntsic-Cartierville)

479 500 $

10700, Rue Berri, app. 205

Montréal (Ahuntsic-Cartierville)

2 1 5
Photo Isabelle Naud

Isabelle Naud

Courtier immobilier résidentiel et commercial

514 576-1766

No Centris
#15466841
Type de propriété
Condo
Style de bâtiment
En rangée
Année de construction
2013

Caractéristiques

Zonage
Résidentiel
Système d'égouts
Municipal
Stationnement
Extérieur (1)
Proximité
Transport en commun , École secondaire, École primaire, Piste cyclable, Parc-espace vert, Hôpital, Garderie/CPE, Cegep, Autoroute/Voie rapide
Équipement disponible
Interphone , Échangeur d'air, Climatiseur mural
Énergie pour le chauffage
Électricité
Approvisionnement en eau
Municipalité
Services disponibles
Terrasse sur le toit
Appareils en location
Chauffe-eau (1)
Allée
Asphalte

Dimensions

Superficie habitable
73.90 m²

Particularités des pièces

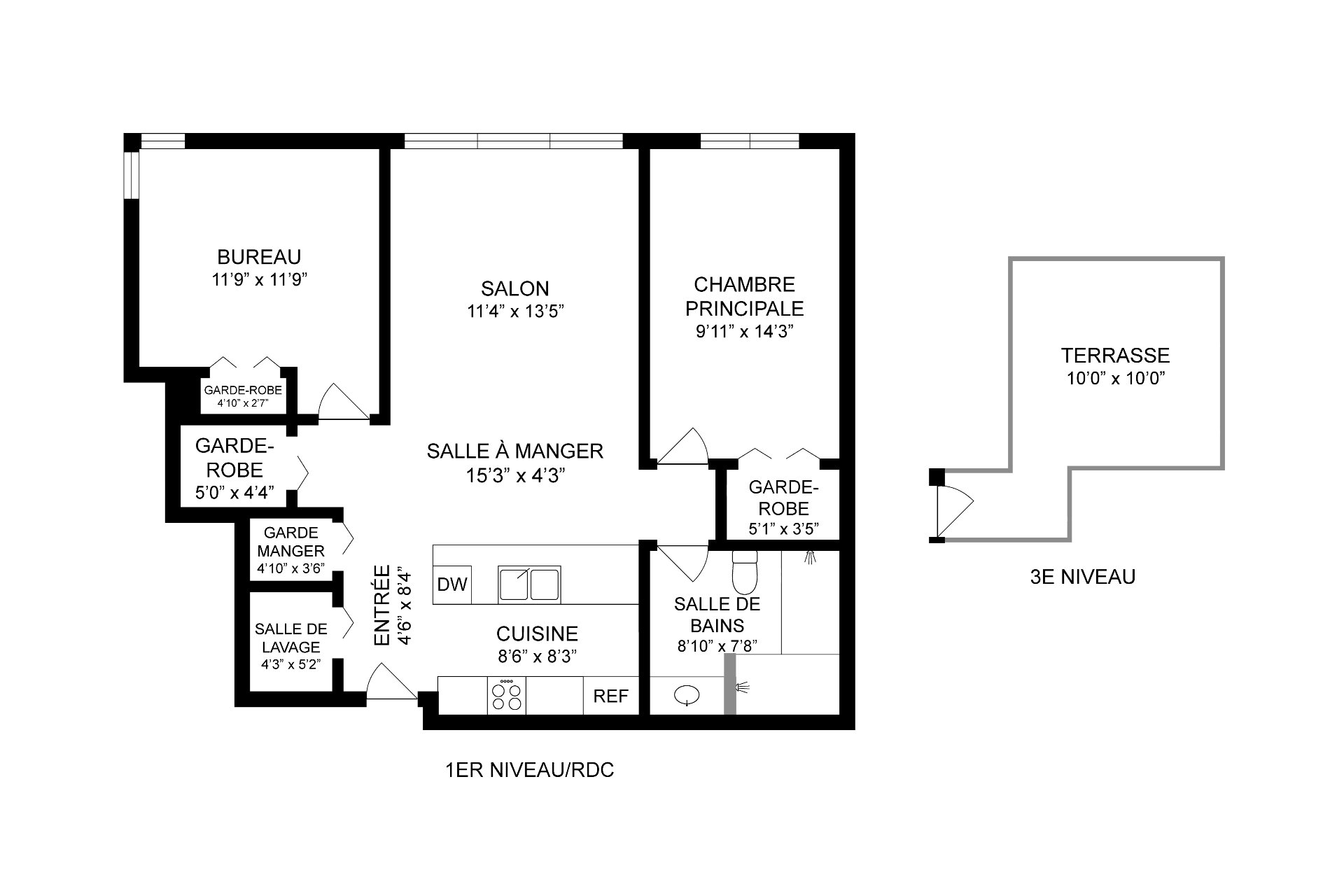
Pièces
5 pièces    |    2 chambre(s)    |    1 salle(s) de bain    |    0 salle(s) d'eau
Hall d'entrée
2ième étage
4.6 x 8.4 pi. - irrégulier
Revêtement : Bois
Salon
2ième étage
11.4 x 13.5 pi. - irrégulier
Revêtement : Bois
Cuisine
2ième étage
8.6 x 8.3 pi.
Revêtement : Bois
garde manger
2ième étage
4.10 x 3.6 pi. - irrégulier
Revêtement : Bois
Salle à manger
2ième étage
15.3 x 4.3 pi. - irrégulier
Revêtement : Bois
Chambre à coucher principale
2ième étage
9.11 x 14.3 pi. - irrégulier
Revêtement : Bois
Penderie (Walk-in)
2ième étage
5 x 4.4 pi. - irrégulier
Revêtement : Bois
Chambre à coucher
2ième étage
11.9 x 11.9 pi. - irrégulier
Revêtement : Bois
Salle de bains
2ième étage
8.10 x 7.8 pi. - irrégulier
Revêtement : Céramique
Salle de lavage
2ième étage
4.3 x 5.2 pi. - irrégulier
Revêtement : Bois

Inclusions

Habillage des fenêtres (stores enrouleurs), tous les luminaires

Exclusions

-Miroir dans le corridor entre le chambre et la salle de bain -Les deux tables de chevet dans la chambre

Addenda

Magnifique condo lumineux situé au 10700 Rue Berri #205, offrant un espace de vie moderne et chaleureux au coeur d'un secteur recherché. Dès votre entrée, vous serez charmé par l'aire de vie à aire ouverte, baignée de lumière naturelle, idéale pour recevoir ou profiter du quotidien dans un environnement convivial.

L'unité propose deux chambres à coucher de bonnes dimensions, parfaites pour répondre à vos besoins, que ce soit pour une famille, un couple ou un espace bureau à domicile. La salle de bain moderne est équipée d'un bain et d'une douche séparés, offrant confort et fonctionnalité.

À l'extérieur, profitez d'une grande terrasse commune sur le toit, un véritable atout pour vos moments de détente ou pour recevoir en toute intimité. Un espace de stationnement complète cette propriété.

Idéalement située à quelques pas du métro Henri-Bourassa, cette propriété bénéficie d'un emplacement de choix à proximité de nombreux parcs et espaces verts, ainsi que du bord de l'eau avec ses magnifiques pistes cyclables et sentiers de promenade.

Vous serez également à proximité de tous les services essentiels tels que les épiceries, pharmacies et commerces, sans oublier la célèbre Promenade Fleury, reconnue pour ses restaurants prisés, ses terrasses animées, ses cafés chaleureux et ses boutiques locales.

Une opportunité à ne pas manquer !

À propos de cette propriété

Magnifique condo lumineux de 2 chambres situé au 10700 Rue Berri #205. Aire de vie moderne et conviviale, salle de bain avec bain et douche séparés. Profitez d'une grande terrasse commune sur le toit ainsi que d'un espace de stationnement. Emplacement idéal à quelques pas du métro Henri-Bourassa, près de nombreux parcs, du bord de l'eau et de pistes cyclables. À proximité des épiceries, pharmacies et de la Promenade Fleury avec ses restaurants, cafés et boutiques. Une belle opportunité à saisir !

Demande d'information

Détails financiers

Annuel
Mensuel
Évaluation municipale (2026)
Bâtiment
338 300 $
Terrain
87 600 $
Taxes
Taxes scolaires (2026)
297 $ 25 $
Taxes municipales (2026)
2 558 $ 213 $
Dépenses et énergie
Frais de copropriété
5 028 $ 419 $

Calculateurs

  • Paiement mensuel
  • Taxe de mutation
  • Pouvoir d'achat

Montant des versements mensuels

 

**Le prix affiché n'inclut pas la prime d'assurance SCHL.

Taxe de mutation

 

** Uniquement à titre de référence, pour le montant exact, s'il vous plaît confirmer auprès de la ville ou la municipalité.

Pouvoir d'achat

 

**Le prix affiché n'inclut pas la prime d'assurance SCHL.

Vous aimez cette propriété?

Partagez-la!

Le lien a été copié dans votre presse-papier.

Nouvelles propriétés sur le marché qui pourraient vous intéresser

Vous cherchez la propriété de vos rêves? Appelez-moi pour en savoir davantage ou planifier une visite!

Nouvelle inscription
maison à vendre Montréal (Ahuntsic-Cartierville)
875 000 $

10376 Rue Chambord

Montréal (Ahuntsic-Cartierville)

  • 3 chambre(s)
  • 2 salle(s) de bain

Magnifique propriété lumineuse et chaleureuse au 10376 Rue Chambord, au coeur d'Ahuntsic. Répartie sur trois étages, elle offre deux chambres à l'étage. Le rez-de-chaussée propose une aire de vie ouverte avec cuisine conviviale donnant accès à la cour arrière. Le sous-sol aménagé comprend une troisième chambre et une seconde salle de bain complète. Située à un coin de rue de la Promenade Fleury, reconnue pour ses cafés, restaurants, boutiques et commerces locaux. À proximité des parcs, écoles, pistes cyclables, transport en commun et de tous les services essentiels.

Consulter
maison à vendre Montréal (Ahuntsic-Cartierville)
Vendu

10490 Rue Lajeunesse

Montréal (Ahuntsic-Cartierville)

  • 1 chambre(s)
  • 1 salle(s) de bain

Ce condo offre un espace de vie moderne avec terrasse privée. Proximité du métro Henri-Bourassa à 250 mètres et ascenseur dans le bâtiment pour un accès pratique. Profitez de la terrasse sur le toit avec vue panoramique sur le parc Ahuntsic. Situés près de la Promenade Fleury, ces condos offrent un accès privilégié à la vie locale. Contactez-nous dès aujourd'hui pour en savoir plus sur ces condos uniques face au Parc Ahuntsic.

Consulter
Nouvelle inscription
maison à vendre Montréal (Ahuntsic-Cartierville)
1 849 000 $

10608-10612 Grande Allée

Montréal (Ahuntsic-Cartierville)

  • 3 chambre(s)
  • 2 salle(s) de bain

Situé sur la magnifique Grande Allée, l'une des rues les plus recherchées du quartier, ce triplex intergénérationnel se distingue par son charme et son entretien exemplaire. Le vaste rez-de-chaussée offre trois chambres, une suite des maîtres avec salle de bain attenante et une grande cuisine avec îlot et coin repas, le tout baigné de lumière. À l'étage, deux 4 ½ lumineux complètent l'ensemble. Au sous-sol, accessible par le garage, se trouvent deux logements 3 ½, mais non conformes. Occupation double possible. Garage double, ruelle arrière et emplacement idéal à quelques pas de la Promenade Fleury, du métro et des services.

Consulter
+

Vos préférences en matière de cookies

Les cookies sont utilisés pour optimiser le site web et collecter des statistiques d'utilisation.

Politique en matière de cookies