Photo - Façade

Condo à vendre, Montréal (Ahuntsic-Cartierville)

649 000 $

1310, Rue Sauvé E., app. 208

Montréal (Ahuntsic-Cartierville)

2 1 6
Photo Isabelle Naud

Isabelle Naud

Courtier immobilier résidentiel et commercial

514 576-1766

Photo Patrick Drouin

Patrick Drouin

Courtier immobilier résidentiel et commercial

514 712-1814

No Centris
#25242201
Type de propriété
Condo
Style de bâtiment
Détaché (Isolé)
Année de construction
2003
Date d'emménagement
30 jours

Caractéristiques

Zonage
Résidentiel
Toiture
Membrane élastomère
Système d'égouts
Municipal
Stationnement
Au garage (1)
Revêtements
Brique
Proximité
Transport en commun , École secondaire, École primaire, Piste cyclable, Parc-espace vert, Hôpital, Garderie/CPE, Cegep, Autoroute/Voie rapide
Garage
Intégré
Équipement disponible
Thermopompe murale , Interphone
Énergie pour le chauffage
Électricité
Approvisionnement en eau
Municipalité

Dimensions

Superficie habitable
102.40 m²

Particularités des pièces

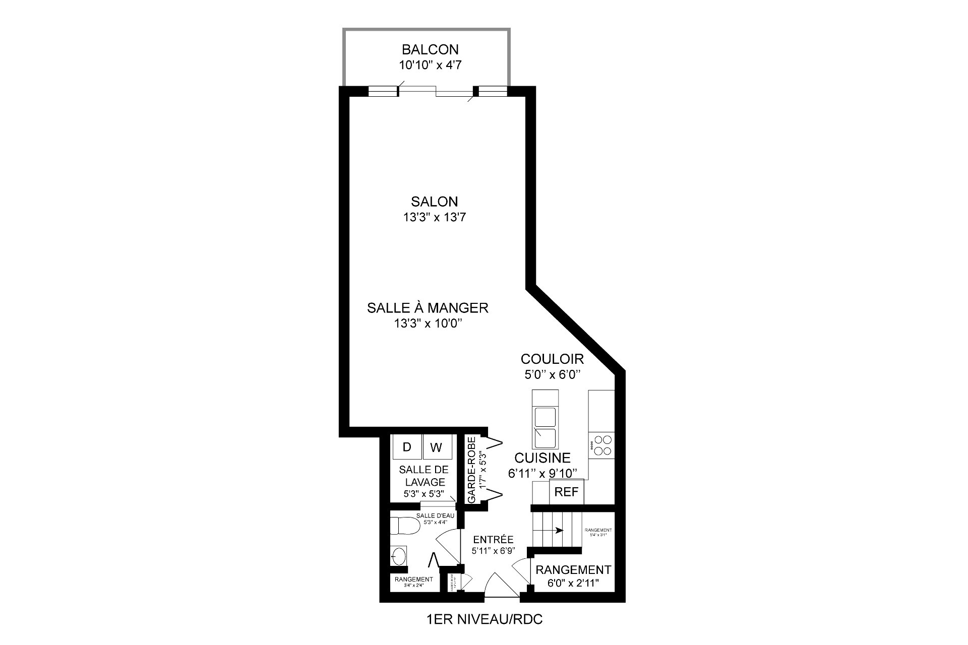
Pièces
6 pièces    |    2 chambre(s)    |    1 salle(s) de bain    |    1 salle(s) d'eau
Hall d'entrée
2ième étage
5.11 x 6.9 pi.
Revêtement : Céramique
Salon
2ième étage
13.3 x 13.7 pi.
Revêtement : Bois
Cuisine
2ième étage
6.11 x 9.10 pi.
Revêtement : Céramique
Salle à manger
2ième étage
13.3 x 10 pi.
Revêtement : Bois
Salle d'eau
2ième étage
5.3 x 4.4 pi.
Revêtement : Céramique
Salle de lavage
2ième étage
5.3 x 5.3 pi.
Revêtement : Céramique
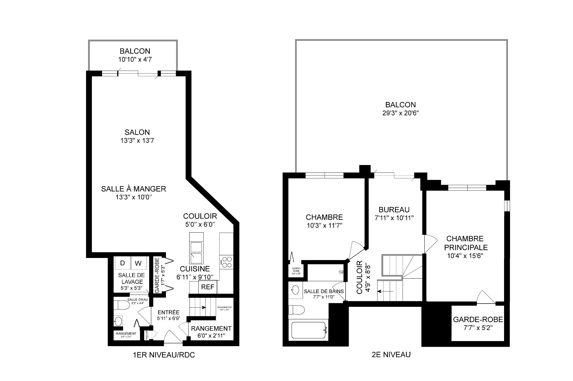
Chambre à coucher principale
3ième étage
10.4 x 15.6 pi. - irrégulier
Revêtement : Bois
Chambre à coucher
3ième étage
10.3 x 11.7 pi. - irrégulier
Revêtement : Bois
Penderie (Walk-in)
3ième étage
7.7 x 5.2 pi. - irrégulier
Revêtement : Bois
Bureau à domicile
3ième étage
7.11 x 10.11 pi. - irrégulier
Revêtement : Bois
Salle de bains
3ième étage
7.7 x 11 pi. - irrégulier
Revêtement : Céramique
Rangement
Sous-sol
4 x 2.3 pi.
Revêtement : Bois

Inclusions

Cuisinière, réfrigérateur, lave-vaisselle, laveuse, sécheuse.

Addenda

Magnifique condo rénové sur deux étages, situé au coeur d'Ahuntsic, offrant un cadre de vie à la fois lumineux, moderne et convivial. Dès l'entrée, vous serez séduit par la vaste aire de vie à aire ouverte, baignée de lumière naturelle grâce à une belle fenestration. Cet espace chaleureux est parfait pour recevoir ou simplement profiter du quotidien dans un environnement harmonieux et bien pensé.

À l'étage, deux chambres de bonnes dimensions offrent confort et intimité. Un espace bureau s'intègre judicieusement à l'aménagement, idéal pour le télétravail ou pour créer un coin lecture. La salle de bain, au goût du jour, propose un bain et une douche séparée, alliant fonctionnalité et confort, en plus d'une salle d'eau pratique au rez-de-chaussée.

À l'extérieur, profitez d'un balcon pour vos moments de détente ainsi que d'une vaste terrasse sur le toit, véritable espace de vie supplémentaire idéal pour recevoir, relaxer ou profiter des belles journées en toute intimité.

Une place de stationnement au garage ainsi qu'un espace de rangement viennent compléter les caractéristiques de cette propriété clé en main.

Idéalement situé à proximité du métro Sauvé, de nombreux parcs, pistes cyclables, garderies, écoles primaires et secondaires ainsi que de collèges réputés. À quelques pas, la célèbre Promenade Fleury vous propose un mode de vie exceptionnel avec ses cafés chaleureux, restaurants prisés, épiceries fines, boulangeries artisanales et charmantes boutiques locales, contribuant à une ambiance de quartier vivante et recherchée.

À propos de cette propriété

Superbe condo sur deux étages au coeur d'Ahuntsic, offrant une lumineuse aire de vie ouverte. Deux chambres à l'étage, espace bureau, salle de bain moderne avec bain et douche séparée, plus une salle d'eau. Profitez d'un balcon et d'une grande terrasse sur le toit. Stationnement au garage et espace de rangement inclus. À proximité du métro Sauvé, parcs, pistes cyclables, écoles et services. À quelques pas, la Promenade Fleury propose cafés, restaurants et boutiques locales.

Demande d'information

Détails financiers

Annuel
Mensuel
Évaluation municipale (2026)
Bâtiment
348 100 $
Terrain
81 000 $
Taxes
Taxes scolaires (2026)
260 $ 22 $
Taxes municipales (2026)
2 373 $ 198 $
Dépenses et énergie
Frais de copropriété
4 692 $ 391 $

Calculateurs

  • Paiement mensuel
  • Taxe de mutation
  • Pouvoir d'achat

Montant des versements mensuels

 

**Le prix affiché n'inclut pas la prime d'assurance SCHL.

Taxe de mutation

 

** Uniquement à titre de référence, pour le montant exact, s'il vous plaît confirmer auprès de la ville ou la municipalité.

Pouvoir d'achat

 

**Le prix affiché n'inclut pas la prime d'assurance SCHL.

Vous aimez cette propriété?

Partagez-la!

Le lien a été copié dans votre presse-papier.

Nouvelles propriétés sur le marché qui pourraient vous intéresser

Vous cherchez la propriété de vos rêves? Appelez-moi pour en savoir davantage ou planifier une visite!

Nouvelle inscription
maison à vendre Montréal (Ahuntsic-Cartierville)
875 000 $

10376Z Rue Chambord

Montréal (Ahuntsic-Cartierville)

  • 3 chambre(s)
  • 2 salle(s) de bain

Magnifique propriété lumineuse et chaleureuse au 10376 Rue Chambord, au coeur d'Ahuntsic. Répartie sur deux étages, elle offre deux chambres à l'étage. Le rez-de-chaussée propose une aire de vie ouverte avec cuisine conviviale donnant accès à la cour arrière. Le sous-sol aménagé comprend une troisième chambre et une seconde salle de bain complète. Située à un coin de rue de la Promenade Fleury, reconnue pour ses cafés, restaurants, boutiques et commerces locaux. À proximité des parcs, écoles, pistes cyclables, transport en commun et de tous les services essentiels.

Consulter
Nouvelle inscription
maison à vendre Montréal (Ahuntsic-Cartierville)
610 000 $

9615 Av. Papineau

Montréal (Ahuntsic-Cartierville)

  • 2 chambre(s)
  • 1 salle(s) de bain

Superbe condo au 9615 Avenue Papineau #503 offrant un style de vie moderne dans un secteur recherché. Espace lumineux et chaleureux avec salon menant à une terrasse privée, salle à manger à aire ouverte et cuisine moderne. Deux chambres dont une suite principale avec walk-in. Gym, terrasse sur le toit avec piscine, stationnement au garage et rangement. À distance de marche de tous les services et de la Promenade Fleury. Proximité des parcs, écoles, garderies...Une opportunité à saisir!

Consulter
Nouvelle inscription
maison à vendre Montréal (Ahuntsic-Cartierville)
3 000 $ / Mois

550 Rue Prieur E.

Montréal (Ahuntsic-Cartierville)

  • 3 chambre(s)
  • 1 salle(s) de bain

CONDO À LOUER Superbe unité à louer au dernier étage d'un immeuble neuf offrant une vue exceptionnelle sur le parc Ahuntsic! Profitez d'un espace lumineux à aire ouverte comprenant trois chambres à coucher et une salle de bain. Finitions modernes et qualité de vie supérieure dans un secteur recherché. À quelques pas du métro Henri-Bourassa, du Parc Ahuntsic et de la Promenade Fleury. Inclus : Balcon privé, stationnement intérieur avec borne de recharge électrique, espace de rangement indépendant et magnifique terrasse commune sur le toit. Idéal pour une famille ou des professionnels souhaitant allier confort, espace et environnement paisible.

Consulter
+

Vos préférences en matière de cookies

Les cookies sont utilisés pour optimiser le site web et collecter des statistiques d'utilisation.

Politique en matière de cookies